伸びやかな暮らしを叶える家
| 開催日 | 1/10(土)~2/1(日) |
|---|---|
| 時間 | 10:00~20:00(うち2時間程度) |
| 開催場所 | 佐野市植下町 |
| このページのQRコード |
見どころ

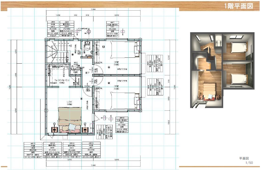
メイン道路側にはあえて窓をつけずにプライベートを重視しています。
玄関ドアは出入りしやすいように道路に向けておりますが、ドアを開けてもLDKが直接見えないように工夫しました。

玄関ホールから直接LDKへ入り2階の個室に向かう、家族の顔を見て外出、帰宅が出来る動線プランとしました。
LDKはリビングから廊下に風が通るように窓を配置し、リビング側には大きめの掃出し窓で南から明るく、キッチン側は階段上からほのかに明かりが入るようにしています。

2階も建物全体はコンパクトながら各個室の大きさは主寝室8帖、他洋室を6帖確保しています。
収納は主寝室に広めのウォークインクローゼット、各洋室にハンガーパイプ付の枕棚を付けています。
また、1階2階共に廊下に収納を付けたので、掃除機などの置き場所にも使って頂けるようにしました。

ポーチの庇は薄く造作し軽さをだし、2階の床をオーバーハングにしてボックス型の外観に変化を持たせています。
間取り




ネクサスビルドが選ばれる理由
◎全国の建築家とつくる設計・デザイン
建築家は、自身のアトリエを各地で運営するほどの実力とセンスの持ち主ばかり。
何百棟もの家のデザイン経験があります。1棟1棟の家のコンセプトはさまざまですが、美しさと機能性を兼ね揃えて、暮らしを整えるデザインです。

◎高い技術と安心安全の家づくり

◎アフターフォロー
